£600,000
- 3 Bedrooms
- 2 Bathrooms
- 1 Reception Rooms
Property Information
- Property Type Flat
- Tenure Share of Freehold
- Market infoMarket info
Location
Elisabeth Court, London Lane, Bromley
Features
- New Home / Share of Freehold
- Spacious 3-bed Modern Apartment
- Private garden with large patio
- Allocated Parking with electric charger
- Open Plan Kitchen/Lounge
- High-specification Finish
- Good transport links
- EPC Band B
Property description
Elisabeth Court has been expertly renovated into five brand-new apartments. Ranging from 1-3 bedrooms, all spacious and all benefiting from a high-specification finish.
Located on the ground floor, this exceptional three-bedroom, ground floor apartment presents a rare opportunity to acquire a modern, high-specification home designed for contemporary living. Offered with a share of the freehold, this property combines the benefits of a new build with the security and control that comes from collective ownership, ensuring peace of mind for discerning buyers.
Upon entering, you are immediately greeted by a sense of space and light, characteristic of its thoughtful design. The heart of this magnificent home is the expansive open-plan kitchen and lounge area. This versatile space is perfect for both everyday living and entertaining, allowing for seamless interaction whether you're preparing a meal or relaxing with guests. The kitchen itself is a testament to modern elegance, featuring integrated appliances, sleek cabinetry, and premium work surfaces that cater to every culinary need. The lounge area offers ample room for comfortable furnishings, creating an inviting atmosphere for unwinding after a long day.
This apartment boasts three generously proportioned bedrooms, providing flexible accommodation options. The master bedroom, in particular, offers a tranquil retreat, often accompanied by an en-suite bathroom for added privacy and convenience. With two well-appointed bathrooms in total, including the en-suite, the property ensures comfort and practicality for residents and visitors alike. Each bathroom is finished to a high standard, featuring contemporary fixtures and fittings.
One of the standout features of this ground-floor apartment is its private garden. This outdoor oasis provides a serene escape, complete with a large patio area perfect for al fresco dining, summer barbecues, or simply enjoying a morning coffee in the fresh air. The garden offers a valuable extension of the living space, a rare and highly sought-after amenity for apartment living, especially within a vibrant urban setting like Bromley.
Further enhancing the appeal of this property is the inclusion of allocated parking, a significant advantage in this popular location. Crucially, the parking space is equipped with an electric vehicle charger, reflecting a commitment to modern sustainability and convenience for electric car owners. This thoughtful addition underscores the forward-thinking nature of this development.
The entire apartment benefits from a high-specification finish throughout, evident in every detail from the flooring to the fixtures. This commitment to quality ensures a luxurious and durable living environment that is ready for immediate occupation. The property's excellent EPC Band B rating highlights its energy efficiency, promising lower running costs and a reduced environmental footprint.
Location is key, and Elisabeth Court excels in this regard. Bromley offers a fantastic array of amenities, including extensive shopping facilities at The Glades, a diverse selection of restaurants, cafes, and bars, and a vibrant cultural scene with theatres and cinemas. For those who enjoy green spaces, there are numerous parks and recreational areas nearby. Crucially, the property benefits from good transport links, with Bromley South and Bromley North stations providing fast and frequent services into Central London, making it an ideal choice for commuters. Regular bus services also connect to surrounding areas, ensuring easy access to everything you need.
This three-bedroom apartment in Elisabeth Court represents an exceptional opportunity to purchase a modern, well-appointed home with desirable outdoor space and essential amenities in a prime Bromley location. It is perfectly suited for professionals, families, or those looking to downsize without compromising on quality or convenience. Early viewing is highly recommended to fully appreciate the calibre of this outstanding property.
Please note that the property is unfurnished - these photos are indicative of how it could be, the video is an accurate current representation.
Open day on Saturday 8th of November - contact us to book a viewing.
Tenure : Share of Freehold
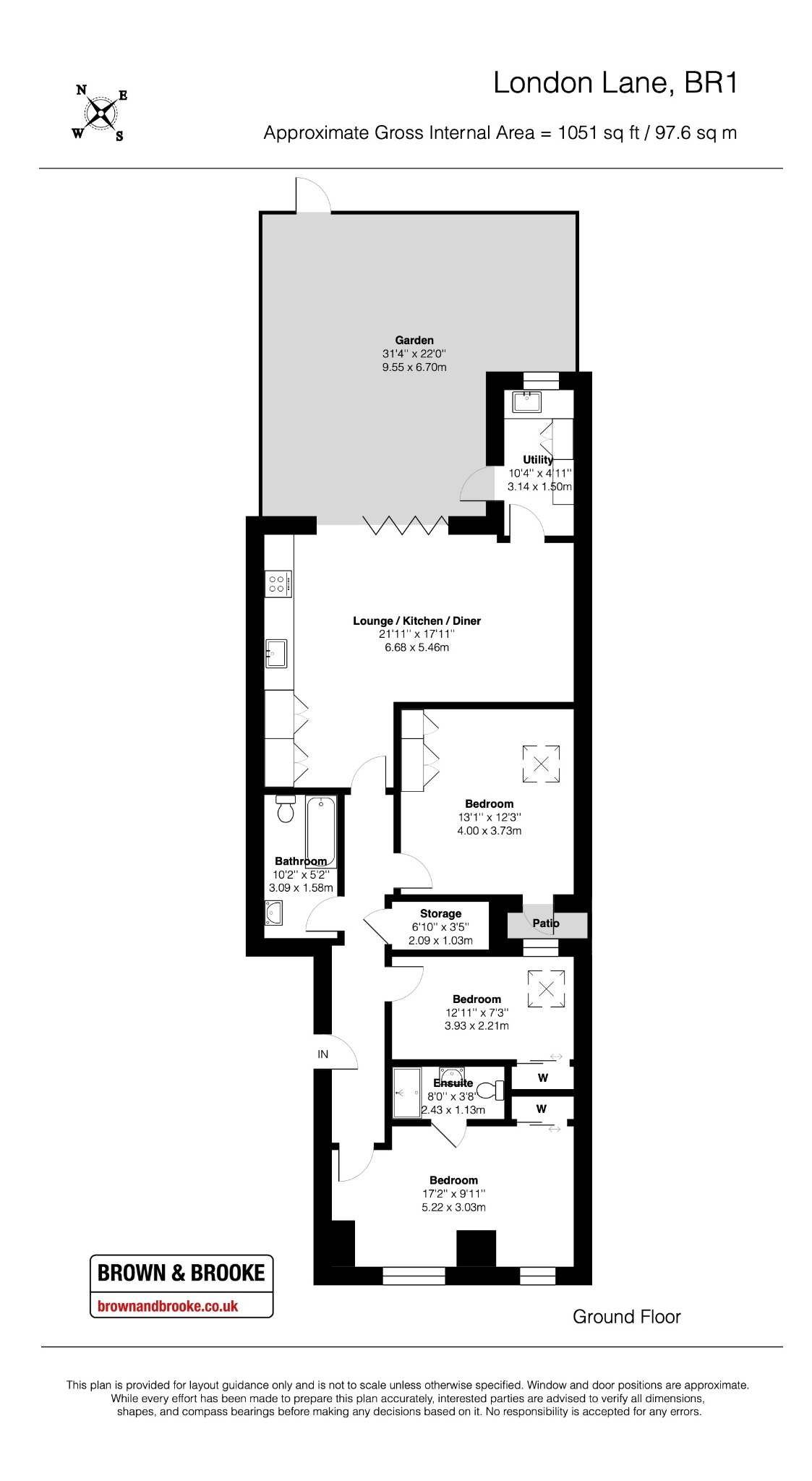
Floor Plan
Media floor plan 00
Stamp Duty Calculator
Single Property
Stamp duty charges
Purchase Price
(Enter numbers only)
Effective Rate
00.00
%
| Tax Band | % | Taxable Sum | Tax |
| less than £250k | 0 | ||
| £250k to £925k | 5 | ||
| £925k to £1.5m | 10 | ||
| rest over £1.5m | 12 |
Additional Property
Stamp duty charges
Purchase Price
(Enter numbers only)
Effective Rate
00.00
%
| Tax Band | % | Taxable Sum | Tax |
| less than £250k | 3 | ||
| £250k to £925k | 8 | ||
| £925k to £1.5m | 13 | ||
| rest over £1.5m | 15 |
First Time Buyer
Purchase Price
(Enter numbers only)
Effective Rate
00.00
%
| Tax Band | % | Taxable Sum | Tax |
| less than £425k | 0(5)** | ||
| £425k to £625k | 5 | ||
| £625k to £925k | 5 | ||
| £925k to £1.5m | 10 | ||
| rest over £1.5m | 12 |
*If the price is over £625,000, you cannot claim the relief. Follow the rules for people who’ve bought a home before.

1